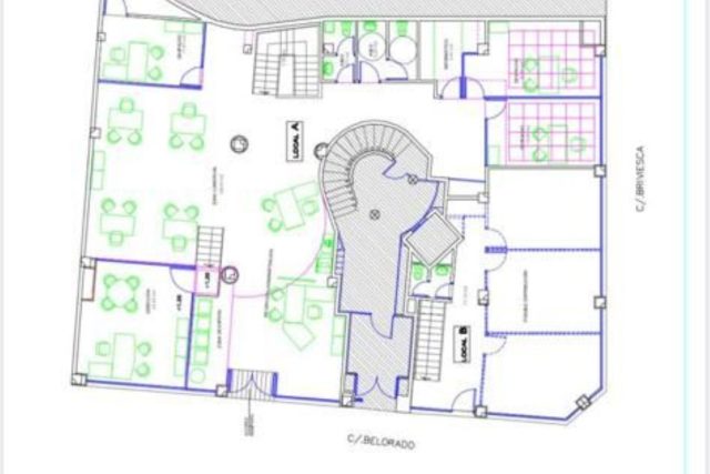
Se vende en calle Belorado, junto a la Avenida La Paz y Calzadas, en pleno centro y una de las mejores zonas de Burgos, muy próximo a Plaza España, local comercial de dos plantas. El local tiene una superficie total de 580 metros cuadrados distribuidos en dos plantas. La planta baja a pie de calle tiene una superficie de 324 metros construidos y la planta sótano tiene 256 metros cuadrados construidos. Actualmente el local esta dividido en dos locales, con posibilidad de comprar los dos juntos o por separado. El precio total de los dos locales juntos es de 650.000 euros y si lo que prefiere es comprar uno solo con 243 metros construidos en planta baja mas 172 metros construidos en planta sótano es de 495.000 euros. No pierda esta oportunidad de implantar su negocio en una de las mejores zonas de Burgos. Se lo enseñamos con mucho gusto. Estamos en calle Madrid nº 11.
Características básicas
580 m2 construidos
2 plantas
Buen estado
8 estancias
3 Baños
Situado a A pie de calle
Hace esquina
2 escaparates
Edificio
Bajo
Certificación energética: En trámite
Equipamiento
Tipo de fachada: Acristalado
Almacén





























